Nieuw in verkoop:Hulkwerf 18, 2725 DS Zoetermeer - Foto
Nieuw in verkoop
+51

Hulkwerf 18 2725 DS Zoetermeer € 575.000,- k.k.

  • Woonhuis
  • 5 kamers
  • 4 slaapkamers
  • 1 badkamers
  • Bouwjaar 1981
  • 185 m² perceeloppervlakte
  • 128 m² gebruiksoppervlakte
  • B Energielabel B

Beschrijving

Sfeervolle en royale 5-kamerwoning in ‘De Leyens’

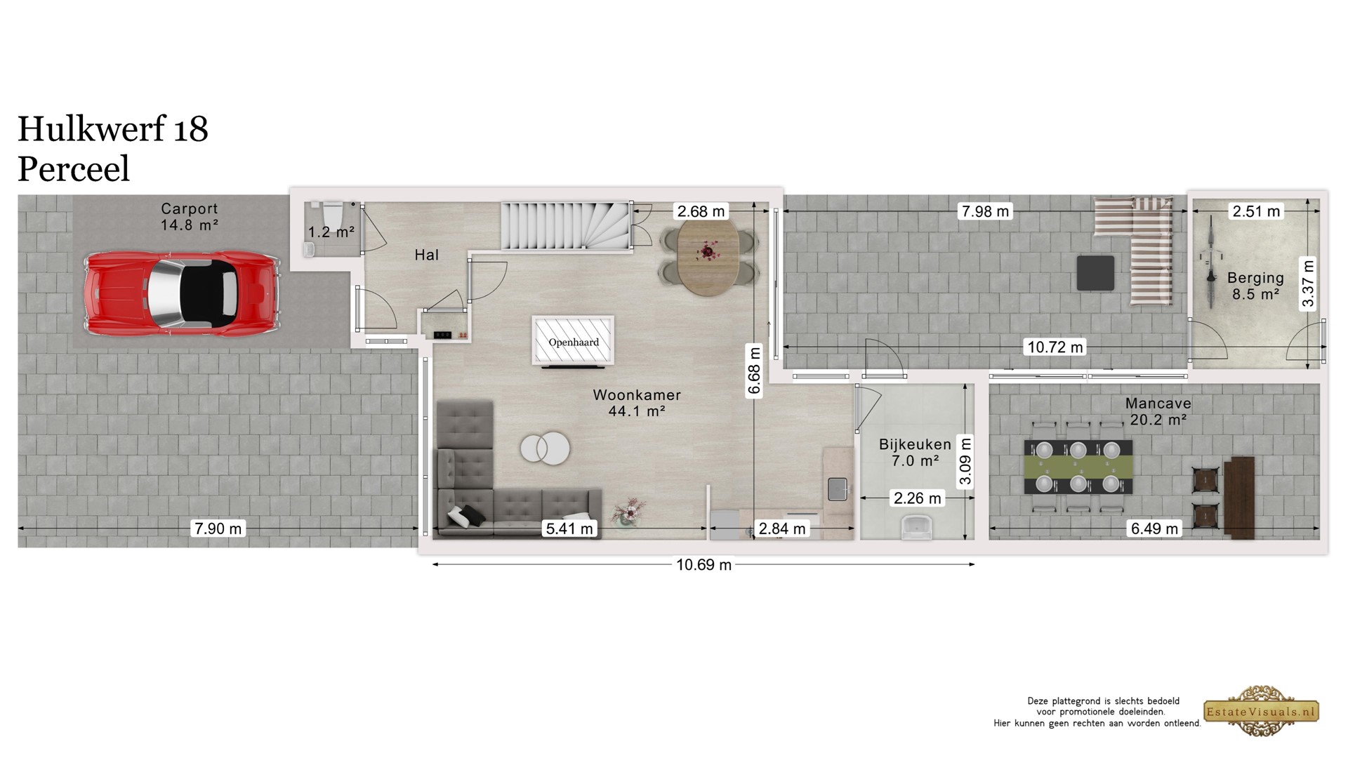
In de groene, rustige en waterrijke wijk De Leyens staat deze verrassend ruime woning met vier slaapkamers, carport en een heerlijk zonnige tuin. Een huis dat direct prettig aanvoelt door de fijne indeling, de sfeervolle open haard en de verzorgde staat van onderhoud.

De ligging is ideaal: winkels, RandstadRail, speeltuinen en scholen liggen om de hoek. Voor ontspanning wandelt u in enkele minuten naar het Noord-Aa recreatiegebied of de Zoetermeerse Plas.

Indeling

Begane grond

Bij aankomst parkeert u onder de carport en stapt u via de hal binnen. De woonkamer is licht en ruim, met een massief eiken vloer, praktische trapkast en schuifpui naar de tuin. De open haard zorgt voor extra sfeer. De keuken is in 2024 volledig vernieuwd en voorzien van moderne inbouwapparatuur: combimagnetron, vaatwasser, koel-vriescombinatie, Quooker, inductiekookplaat en afzuigkap. Aangrenzend vindt u de bijkeuken, te gebruiken voor verschillende doeleinden met toegang tot de tuin.
De achtertuin ligt op het zuidoosten, is verzorgd aangelegd en biedt veel privacy. Hier geniet u van rust, zon en ruimte, een houten berging en een buitenkraan. Door de extra tuinkamer kunt u ook in de winter genieten van de tuin.

Eerste verdieping

Op de eerste verdieping bevinden zich drie slaapkamers, waarvan één met toegang tot het balkon. Alle kamers zijn uitgerust met airco voor zowel koeling in de zomer als verwarming in de winter. De royale badkamer is een fijne plek om te ontspannen, met ligbad, douche, dubbel wastafelmeubel en designradiator.

Tweede verdieping

De tweede verdieping biedt een ruime vierde slaapkamer en een tweede balkon. Ook hier is airco aanwezig. Verder vindt u er veel bergruimte achter de knieschotten en de CV-installatie (Intergas, 2011).

Bijzonderheden

Pluspunten

• Sfeervolle en goed onderhouden woning
• Vier ruime slaapkamers
• Brede opzet (bijna 7 meter)
• Carport en eigen parkeerplaats
• Gelegen in rustige, kindvriendelijke wijk
• Zonnige tuin op het zuidoosten
• Oplevering half december 2025

Dit is een huis dat warmte, ruimte en rust uitstraalt. Nieuwsgierig? Plan snel een bezichtiging en ervaar het zelf!

Kaart

Kenmerken

Overdracht

Referentienummer
00652
Vraagprijs
€ 575.000,- k.k.
Status
Nieuw in verkoop
Aanvaarding
In overleg
Aangeboden sinds
Dinsdag 23 september 2025

Bouw

Type object
Woonhuis, eengezinswoning, tussenwoning
Soort bouw
Bestaande bouw
Bouwperiode
1981
Dakbedekking
Dakpannen
Type dak
Zadeldak
Isolatievormen
Dubbel glas
Vloerisolatie

Oppervlaktes en inhoud

Perceeloppervlakte
185 m²
Woonoppervlakte
127,8 m²
Woonkameroppervlakte
44,1 m²
Inhoud
432 m³
Oppervlakte externe bergruimte
8,5 m²
Oppervlakte gebouwgebonden buitenruimte
47,8 m²
Balkonoppervlakte
12,8 m²

Indeling

Aantal bouwlagen
3
Aantal kamers
5 (waarvan 4 slaapkamers)
Aantal badkamers
1 (en 1 apart toilet)

Tuin

Type
Achtertuin
Hoofdtuin
Ja
Oriëntering
Zuidoost
Heeft een achterom
Ja
Staat
Normaal
Tuin 2 - Type
Voortuin
Tuin 2 - Staat
Normaal

Energieverbruik

Energielabel
B

CV ketel

CV ketel
Intergas
Warmtebron
Gas
Bouwjaar
2011
Eigendom
Eigendom

Uitrusting

Aantal parkeerplaatsen
1
Aantal overdekte parkeerplaatsen
1
Warm water
CV-ketel
Verwarmingssysteem
Airconditioning
Centrale verwarming
Open haard
Ventilatie methode
Mechanische ventilatie
Keukenvoorzieningen
Inbouwapparatuur
Badkamervoorzieningen
Douche
Ligbad
Toilet
Wastafelmeubel
Parkeergelegenheid
Carport
Heeft airco
Ja
Heeft een balkon
Ja
Heeft een open haard
Ja
Heeft een rookkanaal
Ja
Tuin aanwezig
Ja
Beschikt over een internetverbinding
Ja
Heeft schuur/berging
Ja
Heeft een schuifpui
Ja
Heeft ventilatie
Ja

Kadastrale gegevens

Kadastrale aanduiding
Zoetermeer D 1917
Perceeloppervlakte
185 m²
Omvang
Geheel perceel
Eigendomsituatie
Eigen grond

Benieuwd wat uw woning waard is?

Gratis waardebepaling